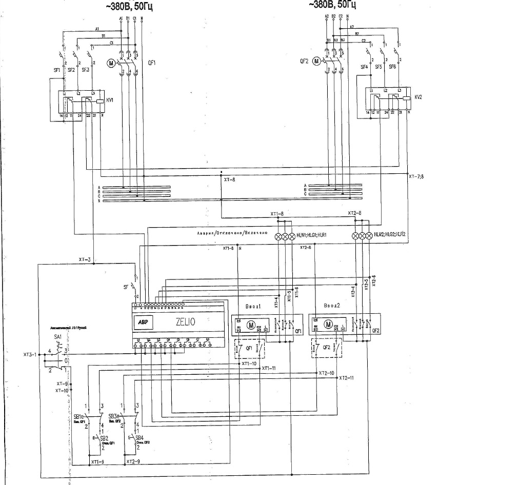
Схема - это только пол-дела, не менее важно, какую программу вы туда зальёте. Так её работоспособность оценить невозможно. Собственно говоря, и ошибиться в ней трудно: только и надо, грубо говоря - подать питание, собрать на входы все сигналы, а выходные направить на управление электроприводами автоматов.
Схема мелковата. Автоматы с электроприводами - NSX, или NS/NT/NW?
Так вроде очевидных "косяков" нет, хотя я принципиально за то, чтобы на контроллер подавать сигналы не "Авария", а "Нет аварии" (т.е. инверсные) - так данные цепи получаются самодиагностируемыми. Но это скорее особенности и привычки того или иного проектировщика, а не ошибки.
Переключение питания оперативных цепей я бы собрал на отдельном контакторе или реле в габаритах контактора, а не на отдельных контактных группах РКН.
Объективных сложностей нет, есть субъективные (если раньше подобным не занимались - то непривычно, не знаешь, с чего начинать).
Пробуйте - в программе есть режим симуляции - можно посмотреть приближённо к реальности, что получилось.
Рекомендую "забить" на режим Ladder и сразу осваивать FBD.
ПрохожийОбъективных сложностей нет, есть субъективные (если раньше подобным не занимались - то непривычно, не знаешь, с чего начинать).
Пробуйте - в программе есть режим симуляции - можно посмотреть приближённо к реальности, что получилось.
Рекомендую "забить" на режим Ladder и сразу осваивать FBD.
ну как то так получилось легенькое,я так и понял что надо осваивать FBD
а если что то посложнее, например использовать контакты или готовое что то написанное чтобы понять смысл есть такое что посмотреть?
Если что посложнее, настоятельно рекомендую накидать на бумажке систему логических уравнений, описывающих требуемый алгоритм (если владеете методом).
Во-первых, на бумаге лучше видны ошибки. Во-вторых, на бумаге лучше видно, что можно оптимизировать.
При таком подходе те-же АВР-ы у меня, как правило, запускались с первой, максимум второй попытки. А когда пытался "с наскоку" - блуждал в дебрях собственноручно накиданных связей
Мужики я правильно мыслю?решил начать с более простого на 2-х автоматах построить,просто первый раз делаю,да и зелио еще не приехало, чтобы на деле попробовать,еще аварийные контакты вставлю,а так в целом все верно делаю?
В целом ход мыслей верный.
А так жисть покажет ))
Для схемы 2х1 я бы поставил переключатель "Приоритет ввода" и завёл бы его на Зелио. По деньгам - копейки, а функциональность схемы шире. У вас же получится схема с жёстко прошитым приоритетом на 1-й ввод.
Ещё не забудьте учесть в логике сигнал переключателя "ручное-автомат", чтобы в ручном режиме вся эта "небесная механика" глушилась ко всем..
Схема - это только пол-дела, не менее важно, какую программу вы туда зальёте. Так её работоспособность оценить невозможно. Собственно говоря, и ошибиться в ней трудно: только и надо, грубо говоря - подать питание, собрать на входы все сигналы, а выходные направить на управление электроприводами автоматов.
Схема мелковата. Автоматы с электроприводами - NSX, или NS/NT/NW?
Так вроде очевидных "косяков" нет, хотя я принципиально за то, чтобы на контроллер подавать сигналы не "Авария", а "Нет аварии" (т.е. инверсные) - так данные цепи получаются самодиагностируемыми. Но это скорее особенности и привычки того или иного проектировщика, а не ошибки.
Переключение питания оперативных цепей я бы собрал на отдельном контакторе или реле в габаритах контактора, а не на отдельных контактных группах РКН.
В данной схеме предлагают использовать автоматы ABB 1600 ампер и реле зелио
если есть нарезки какие то схем,буду премного благодарен посмотреть
Какие сложности в написании,что к чему не просвятите?прочитал мануал по зелио шнайдера,но по всей видимости этого маловато)))
Объективных сложностей нет, есть субъективные (если раньше подобным не занимались - то непривычно, не знаешь, с чего начинать).
Пробуйте - в программе есть режим симуляции - можно посмотреть приближённо к реальности, что получилось.
Рекомендую "забить" на режим Ladder и сразу осваивать FBD.
Пробуйте - в программе есть режим симуляции - можно посмотреть приближённо к реальности, что получилось.
Рекомендую "забить" на режим Ladder и сразу осваивать FBD.
ну как то так получилось легенькое,я так и понял что надо осваивать FBD
а если что то посложнее, например использовать контакты или готовое что то написанное чтобы понять смысл есть такое что посмотреть?
Здесь посмотрите, может что и сгодится: http://netkom.by/podderzhka/podderzhka
Если что посложнее, настоятельно рекомендую накидать на бумажке систему логических уравнений, описывающих требуемый алгоритм (если владеете методом).
Во-первых, на бумаге лучше видны ошибки. Во-вторых, на бумаге лучше видно, что можно оптимизировать.
При таком подходе те-же АВР-ы у меня, как правило, запускались с первой, максимум второй попытки. А когда пытался "с наскоку" - блуждал в дебрях собственноручно накиданных связей
Спасибо большое,насколько я понимаю это прошивки под схемы с документа шнайдера о реализации авр-а на реле Zelio Logic?
Да, это они.
Мужики я правильно мыслю?решил начать с более простого на 2-х автоматах построить,просто первый раз делаю,да и зелио еще не приехало, чтобы на деле попробовать,еще аварийные контакты вставлю,а так в целом все верно делаю?
В целом ход мыслей верный.
А так жисть покажет ))
Для схемы 2х1 я бы поставил переключатель "Приоритет ввода" и завёл бы его на Зелио. По деньгам - копейки, а функциональность схемы шире. У вас же получится схема с жёстко прошитым приоритетом на 1-й ввод.
Ещё не забудьте учесть в логике сигнал переключателя "ручное-автомат", чтобы в ручном режиме вся эта "небесная механика" глушилась ко всем..